Progettazione di infissi su misura
REALIZZAZIONE DI INFISSI IN PVC ALLUMINIO E LEGNO ALLUMINIO
I TRE REQUISITI PER UNA FINESTRA DI QUALITA':
Comfort
Una finestra di qualità deve proteggerci dalle temperature esterne e questa capacità viene definita in termini tecnici come isolamento termico Se la finestra ha buone prestazioni termoisolanti, percepiremo sempre una temperatura piacevole e le dispersioni di riscaldamento e raffreddamento saranno ridotte al minimo.
In qualunque stagione dell’anno, un buon isolamento ci permette di risparmiare sui costi dell’energia elettrica.
Una finestra di qualità deve proteggerci anche dai rumori che provengono dall’esterno. Deve garantirci isolamento acustico. Immaginate di non riuscire a godervi il silenzio e la pace della vostra casa e vi renderete conto di quanto sia importante questo aspetto.
Estetica
Una finestra di qualità deve saper dare un tocco unico all’ambiente con forme e colori che valorizzano l’architettura e l’arredamento dello spazio. Una finestra esteticamente curata in ogni dettaglio diventa parte integrante di ciò che la circonda e non un banale elemento di chiusura.
Protezione e Sicurezza
Una finestra di qualità deve proteggerci anche quando all’esterno ci sono eventi metereologici avversi come la pioggia o il vento. Il livello di protezione di una finestra viene stabilito sottoponendola a tre test:
- Tenuta all’acqua
- Permeabilità all’aria
- Resistenza al vento
Non solo, deve proteggerci anche dai pericoli che provengono dall’esterno e garantirci un buon livello di sicurezza contro gli scassinamenti ed i furti.
TENUTA DELL'ACQUA
Classe 9A
(prestazioni fino a 600Pa)
TENUTA DELL'ARIA
Classe 4
(pressione fino a 600 Pa)
RESISTENZA AL VENTO
Classe C3
(pressione fino a 1200 Pa e deflessione s=1/300)
PROTEZIONE ANTIEFFRAZIONE
RC1 Aggiornabile a RC2
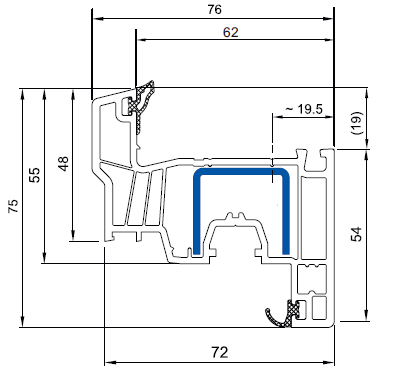
DISEGNO
Salamander proEvolution 72 profilo dal design moderno con linee rette, 5 camere
PROFONDITÁ DEL SISTEMA
Profondità di costruzione di 72 mm per telaio e anta
GUARNIZIONI DI TENUTA
3 Guarnizioni di tenuta, grigie per finestre bianche e nere per finestre colorate









